commercial
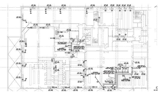
ES Engineering was retained by TELUS to design a new chilled water piping system for the VIDC Data Centre. Several fan coils in the range of 15 to 25 tons cooling capacity are fed from existing chilled water lines installed within a raised floor. The new chilled water piping system is installed in the floor below the Data Centre and is designed to handle higher chilled water flow when the system switches to the free cooling mode. ES Engineering as the prime consultant was responsible for preparing design documents and carrying out construction administration for mechanical, electrical and structural engineering as required to properly complete the project. As well, ES Engineering acted as the primary contact and source of information for the client.
All rights reserved © Copyright 2026 ES Engineering Ltd