Telus New Westminster

commercial

DMS-100 and ADSL Room Upgrade

This project was to upgrade the existing return air system in DMS-100 and Transport Room at TELUS New Westminster. Work included demolition to existing ductwork and return air system, installation of the new ductwork distribution complete with air outlets, mechanical insulation, controls and electrical wiring.

Chilled Water System Free Cooling Review

ES Engineering was commissioned by Telus to review potential operational cost savings associated with installing a free cooling system for the chilled water system at the New Westminster CO. The free cooling concept has been applied successfully for many years. It allows building owners/operators to take advantage of outdoor climate conditions to save system operating costs. We believe that the cooling plant in this building can be modified to take advantage of free cooling.

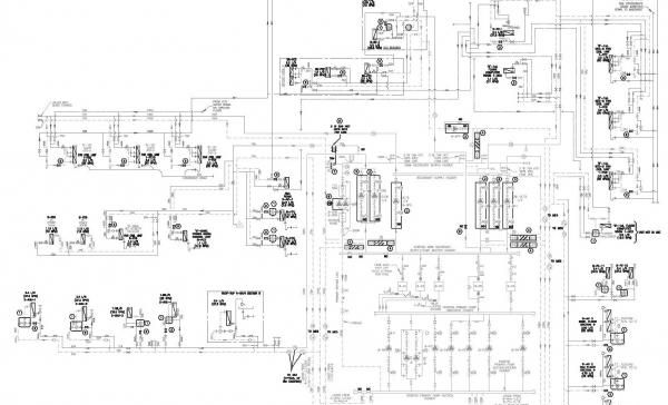
Chiller Plant Upgrade (Phase 1 & 2)

A chiller plant upgrade has been made to provide efficiency upgrades to the chilled water system. ES Engineering has been assigned as the prime consultant to design for the chiller plant upgrade so that they delivered to achieve high efficiency in the chilled water system with the application of and utilizing through the use of free cooling system as well as the replacement of old equipment with new high efficient and advance technical capabilities.

New Rooftop Unit (RTU-DMS100)

An efficient rooftop unit is to be installed to provide the required cooling needed due to the growth of the electronics equipment that would dissipate heat at DMS-100 section. A large challenge is that a certain amount of cooling must be maintained in the building during the execution of the project. This requirement would be demanded simultaneous shut down of the existing rooftop unit and installation of new equipment to minimize disturbing the cooling load as much as possible. A temporary cooling system is also specified to provide cooling during construction and new rooftop unit installation.

Chiller Replacement

A chiller serves as a vital piece of equipment in a building's air conditioning system, cooling down water to that is then distributed throughout a building to various coils. Coils may be located in air handling units or standalone fancoils.

ES Engineering designed a layout that involved the removal of an old inefficient chiller along with all of its accessories and replacement with a new, high efficiency model unit.

Cooling Tower Replacement

Along with the chiller, another important piece of equipment in a building's air conditioning system is the cooling tower. When a chiller cools down water to be circulated through the building, unwanted heat must be rejected, this is the responsibility of the cooling tower.

The existing cooling towers serving the building are inherently less efficient due to their age.

ES Engineering was responsible for specifying a new cooling tower to be installed as well as design of a layout that would best accommodate the tower for most efficient operation. To fully compliment the new cooling tower a VFD was also specified to help reduce motor use and therefore reduce operating costs.

Second Floor System Review

ES Engineering is responsible to review the performance of the HVAC system in the 2nd floor.


  • Determine the cause of the lackluster performance.

  • Determine how and if the equipment can be used for free-cooling.

  • Ensure that the equipment is operating correctly as per design specifications.

  • Provide recommendations for the improvement of the HVAC system.

  • Provide options to add redundancy to the existing HVAC system in case of equipment failure.